Nowoczesna Rezydencja  – Przestrzeń i Elegancja.

Prezentujemy projekt solidnego, murowanego domu, który łączy w sobie klasyczną formę w nowoczesnym wydaniu z imponującym, wysokim i przestronnym wnętrzem. To idealna propozycja dla osób poszukujących trwałego domu o dużej powierzchni ceniących przestrzeń i swobodę. Projekt pozwala na stworzenie luksusowych  i nietuzinkowych stref do pracy i wypoczynku.

Dom w Hoszowie – nowoczesna rezydencja murowana o powierzchni 160,20 m²

Kluczowe parametry inwestycji:

  • Powierzchnia użytkowa parteru: 130,80 m2.
  • Powierzchnia użytkowa poddasza: 29,40 m2.
  • Łączna powierzchnia mieszkalna: 160,20 m2 .
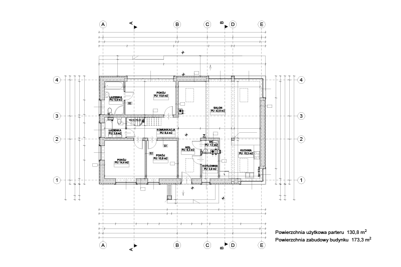
Rzut parteru rezydencji w Hoszowie – salon, kuchnia i trzy sypialnie 130,80 m²

Parter – Przestronność i funkcjonalność (130,80 m 2 )

Strefa dzienna została zaprojektowana tak, aby zapewnić maksymalny komfort i swobodę ruchu:

  • Salon i Kuchnia: Salon połączony z otwartą kuchnią powierzchni 42,6 m2 i 15,3m2 oferujące mnóstwo miejsca na rodzinną integrację. Pomieszczenia posiadają wysokość podwójnej kondygnacji, bez stropu nad parterem.
  • Trzy dodatkowe pokoje: Ustawne sypialnie parterowe o powierzchni 10,8 m2, 14,4 m2, i 15,6 m2, 
  • Dwie łazienki: Komfortowy układ z dwiema łazienkami (5,9 m2 i 3,9 m2).
  • Komunikacja: Szeroka i wygodna komunikacja ze schodami na poddasze (8,4 m 2 ) oraz funkcjonalny hol o pow. 8,3 m2
  • Kotłownia: o powierzchni 3,9 m2

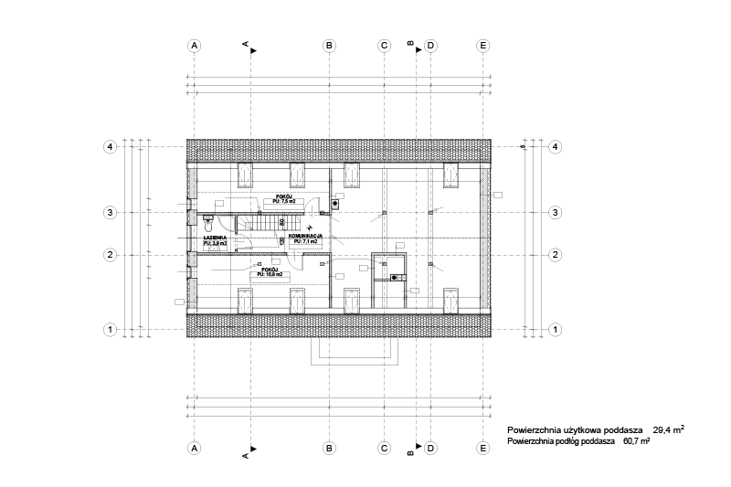
Piętro – Osobista strefa komfortu (29,40 m 2 )

Górna kondygnacja to azyl prywatności dla domowników:

  • Dwie sypialnie: Pokoje o powierzchniach 7,5 m2 oraz 10,9 m2
  • Komunikacja: O powierzchni 7,1 m2
  • Łazienka: O powierzchni 3,9 m 2 .
Pietro 1

Zalety tego projektu:

  • Trwałość na pokolenia: Technologia murowana gwarantuje doskonałą akumulację ciepła oraz najwyższy standard izolacji akustycznej.
  • Mnóstwo sypialni: Dom oferuje aż 5 niezależnych pokoi (poza salonem), co daje ogromne możliwości aranżacyjne.
  • Nowoczesna architektura: Typowa bryła budynku z dwuspadowym dachem została opakowana w nowoczesne materiały i wykończenia z dużymi przeszkleniami, przez co budynek prezentuje się elegancko i prestiżowo.

Zobacz nasze najnowsze realizacje

„Odkryj nasze najnowsze projekty domów z bali – nowoczesne układy, pełne piwnice i przytulne poddasza czekają!”

Przewijanie do góry