Nowoczesny Dom Murowany – Przestrzeń i Elegancja dla Całej Rodziny
Prezentujemy projekt solidnego, murowanego domu jednorodzinnego, który zachwyca nie tylko ponadczasową architekturą, ale przede wszystkim imponującą powierzchnią i funkcjonalnością. To idealne rozwiązanie dla dużej rodziny, ceniącej trwałość i wygodę.

Kluczowe parametry inwestycji:
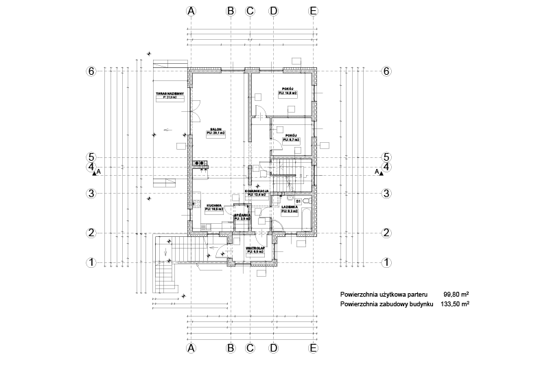
- Powierzchnia zabudowy: 133,50 m2
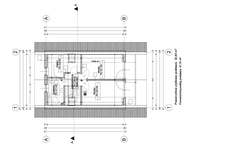
- Powierzchnia użytkowa mieszkalna (parter + poddasze): 177,00 m 2
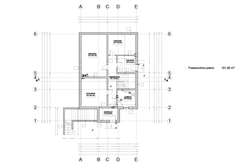
- Powierzchnia piwnic: 101,80m2
- Salon z wyjściem na taras: Imponujący salon (29,1 m 2 ) z tarasem naziemnym o powierzchni 21,8 m2
- Kuchnia ze spiżarnią: Duża kuchnia (18,5 m2) z praktyczną spiżarką (2,0 m2).
- Dwa dodatkowe pokoje: (14,8 m2oraz 8,7 m2) – idealne na biuro lub sypialnię parterową.
- Łazienka i wiatrołap: Komfortowa łazienka (8,3 m 2 ) oraz wejście z miejscem na szafę (6,0 m 2 ).
- Solidna technologia: Budynek murowany gwarantuje doskonałą izolację akustyczną i trwałość na pokolenia.
- Maksymalne wykorzystanie przestrzeni: Ponad 100 m2piwnicy pozwala nie tylko na przechowywanie ale umożliwia urządzenie tam garażu, warsztatu czy siłowni.
- Komfort i prywatność: Aż 5 sypialni (łącznie z parterem) oraz liczne łazienki zapewniają wygodę nawet licznej rodzinie.
- Relaks na świeżym powietrzu: Duży taras parterowy (21,8 m2) to idealne miejsce na poranną kawę
Zalety tego projektu:
- Solidna technologia: Budynek murowany gwarantuje doskonałą izolację akustyczną i trwałość na pokolenia.
- Maksymalne wykorzystanie przestrzeni: Ponad 100 m2piwnicy pozwala nie tylko na przechowywanie ale umożliwia urządzenie tam garażu, warsztatu czy siłowni.
- Komfort i prywatność: Aż 5 sypialni (łącznie z parterem) oraz liczne łazienki zapewniają wygodę nawet licznej rodzinie.
- Relaks na świeżym powietrzu: Duży taras parterowy (21,8 m2) to idealne miejsce na poranną kawę



