DOM LETNISKOWY w Olecku – Naturalne Piękno i Przestronność.
Ten projekt to kwintesencja górskiego stylu. Solidna konstrukcja z bali łączy się tutaj z wyjątkowo rozbudowaną funkcjonalnością, oferując aż trzy poziomy przemyślanej przestrzeni. To idealna propozycja dla osób szukających autentyczności i kontaktu z naturą bez kompromisów w kwestii wygody

Kluczowe parametry inwestycji:
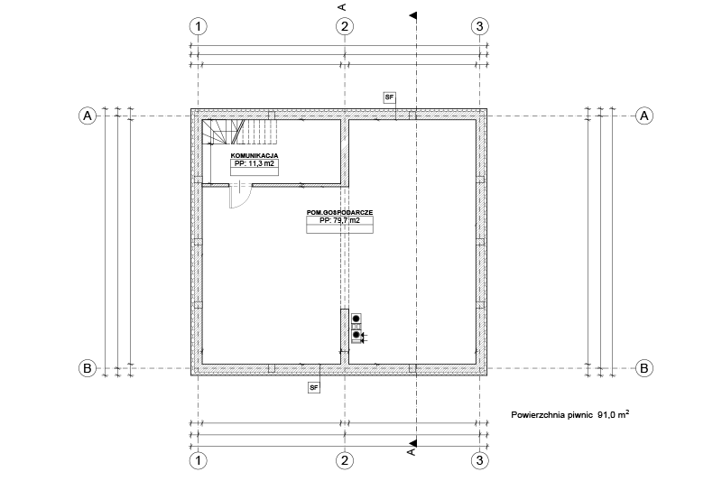
- Powierzchnia piwnic: 91,00 m2 .
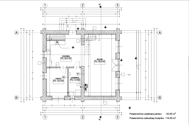
- Powierzchnia użytkowa parteru: 82,00 m2.
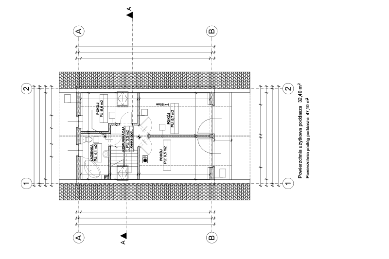
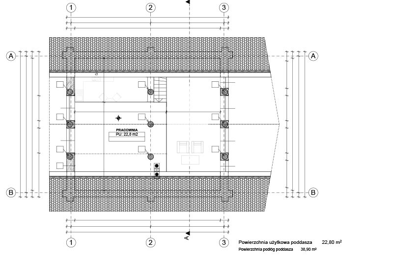
- Powierzchnia użytkowa poddasza: 22,80 m2.
- Łączna powierzchnia użytkowa (bez piwnic): 104,80 m2
Dlaczego warto wybrać ten dom z bali?
- Zdrowy mikroklimat: Ściany z naturalnego drewna „oddychają”, zapewniając unikalną atmosferę i doskonałe samopoczucie domowników. Dom idealnie nadaje się do kameralnego wypoczynku w górach lub nad jeziorem.
- Pełne podpiwniczenie: Dodatkowe 91 m powierzchni to idealne miejsce na domowe SPA, siłownię lub warsztat.
- Tradycyjny design: Widoczne bale i starannie zaprojektowane detale sprawiają, że dom wygląda stylowo i prestiżowo.



